DỊCH VỤ XIN GIẤY PHÉP XÂY DỰNG
Chào Bạn!
♥ Bạn cần Xin Giấy Phép Xây Dựng để chuẩn bị xây dựng tổ ấm cho mình.
♥ Bạn đang phân vân không biết làm như thế nào?
♥ Công ty nào giúp mình xin giấy phép một cách nhanh chóng, đúng thời gian quy định.
♥ Và rất nhiều câu hỏi thắc mắc……
- Bản vẽ xin giấy phép như thế nào, trong bản vẽ gồm những phần nào?
- Xin giấy phép xây dựng ở đâu, cơ quan nào cấp giấy phép xây dựng?
- Hồ sơ xin giấy phép xây dựng gồm những gì ?
- Thời gian xin giấy phép xây dựng mất tối đa bao nhiêu ngày?
- Lệ Phí Xin Giấy Phép Xây Dựng là bao nhiêu?
- Thủ Tục Xin giấy phép như thế nào?
Và còn rất nhiều câu hỏi khác nữa ………………….
Hôm nay mình sẽ tiết lộ cho bạn……
BÍ QUYẾT XIN GIẤY PHÉP XÂY DỰNG TIẾT KIỆM HƠN 50% THỜI GIAN CHO BẠN
|
BẠN CÓ BIẾT: 80% chủ nhà mất nhiều THỜI GIAN cho Giấy Phép Xây Dựng |
BẠN CHƯA BIẾT BẮT ĐẦU TỪ ĐÂU???

⇒ Đừng để bị mất quá nhiều thời gian và tiền bạc nữa
– Thị trường xây dựng hiện tại chắc cũng khiến cho bạn hoang mang khi lựa chọn công ty xin phép. Bạn cũng đã nghe nhiều đơn vị tư vấn nhưng cũng không nơi đâu làm đúng thời gian cho bạn.
Hơn 10 năm làm trong lĩnh vực chuyên Xin Giấy Phép Xây Dựng, tôi đã chứng kiến rất nhiều chủ nhà than phiền : “mất tiền oan – chậm trễ – làm tới làm lui mãi không xong”.
Và hơn ai hết, tôi hiểu cái cảm giác ĐAU KHỔ của họ.
Điều mà, tôi không bao giờ muốn nó xảy ra với bạn

|
HÔM NAY TÔI CHIA SẺ BÍ QUYẾT NÀY CHO BẠN |
Những kinh nghiệm tôi đã đúc kết thành bí quyết.
Bạn sẽ không phải tốn hơn 10 năm như tôi.
Tôi: Tô Vọng Thiên – Giám đốc Công ty TNHH Xây dựng nhà Song Ngân

|
BẠN MUỐN XIN GIẤY PHÉP XÂY DỰNG MỘT CÁCH NHANH CHÓNG BẠN PHẢI BIẾT THÔNG TIN |
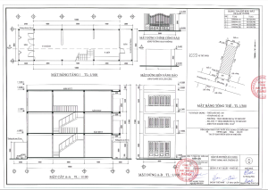
Bản vẽ xin giấy phép như thế nào, trong bản vẽ gồm những phần nào?

Lập bản vẽ xin giấy phép xây dựng để thể hiện toàn bộ các mặt bằng của ngôi nhà bạn muốn xây, nội dung bản vẽ xin phép xây dựng bao gồm những phần quan trọng sau:
+ Mặt bằng: gồm mặt bằng tổng thể và mặt bằng sơ bộ của diện tích mà bạn muốn xây dựng.
- Mặt bằng tổng thể: thể hiện diện tích xây dựng so với diện tích đất. Để biết diện tích xây dựng bạn phải kiểm tra mật độ xây dựng quy định của quận yêu cầu nhé.
- Mặt bằng sơ bộ: bao gồm đầy đủ từ tầng trệt, lửng, tới các lầu, mái mà bạn muốn xây dựng.
+ Mặt cắt: bao gồm mặt cắt AA của ngôi nhà cũng như phần móng và phần hầm tự hoại.
+ Mặt đứng: thể hiện mặt tiền ngôi nhà từ hình dạng và kích thước kể cả phần mái, bên cạnh đó cũng thể hiện rõ chiều cao tầng của ngôi nhà.
Tất cả những hình vẽ này phải thể hiện kích thước đầy đủ. Để chủ nhà có thể hình dung sơ khởi cho ngôi nhà.
+ Bản đồ họa độ vị trí: thể hiện vị trí tọa độ của khu đất cũng như liền kề những khu đất xung quanh. Yêu cầu phần này phải đúng với trong giấy chứng nhận quyền sử dụng đất. Trường hợp sổ cũ không có tọa độ thì bạn phải làm thêm bản đồ hiện trạng cho khu đất của mình.
+ Khung tên bản vẽ xin phép xây dựng: thể hiện gồm 3 phần quan trọng
- Tên công ty có chức năng xin phép: ở đây phải thể hiện tên công ty, địa chỉ, mã số thuế, và số điện thoại của chủ doanh nghiệp.
- Kiến trúc sư thiết kế: ký và ghi rõ họ tên của kiến trúc sư thiết kế của công ty, người đảm nhiệm thiết kế cho đúng nhu cầu của bạn và quy định của quận.
- Phần chủ nhà: ký và ghi rõ họ tên của chủ nhà đúng với trên giấy chứng nhận quyền sở hữu đất. trường hợp cả hai vợ chồng đứng trên giấy chứng nhận thì trong khung tên phải có chữ ký của 2 vợ chồng
+ Phần quan trọng là bạn phải dành 1 khoảng trống để quận phê duyệt, ký tên và đóng dấu cho bản vẽ của bạn.
Xin giấy phép xây dựng ở đâu là đúng quy định?
- Tại Sở Xây dựng: đối với những công trình xây dựng cấp đặc biệt, cấp 1, công trình tôn giáo, di tích lịch sử, miếu đình, tượng đài, quảng cáo, công trình trên các tuyến, trục đường chính TP do UBND TP qui định.
- Tại UBND Quận, Huyện: nhà ở riêng lẻ của người dân và các công trình xây dựng khác thuộc địa giới hành chính Quận, Huyện.
- Ban quản lý đầu tư và xây dựng: các khu đô thị mới, khu công nghiệp, chế xuất, khu công nghệ cao: tất cả trường hợp xây dựng mới, công trình xây dựng tạm, sửa chữa cải tạo mà theo qui định phải xin giấy phép xây dựng trên phạm vi ranh giới khu đô thị, chế xuất, công nghiệp đó.
- UBND xã: nhà ở riêng lẻ ở điểm khu dân cư nông thôn đã có qui hoạch xây dựng thuộc địa giới hành chính xã.
Sau khi liệt kê thế này, chắc bạn cũng đã biết mình muốn xin phép xây dựng ở đâu rồi đúng không?

Hồ sơ xin giấy phép xây dựng gồm những gì ?
- Bản vẽ thiết kế thể hiện được vị trí mặt bằng, mặt cắt, mặt đứng điển hình; mặt bằng móng của công trình; sơ đồ vị trí hoặc tuyến công trình; sơ đồ hệ thống và điểm đấu nối kỹ thuật cấp điện, cấp nước, thoát nước; ảnh chụp hiện trạng (đối với công trình sửa chữa, cải tạo yêu cầu phải có Giấy phép xây dựng).
- Đơn xin cấp Giấy phép xây dựng (theo thông tư 15/2016 mẫu do Bộ Xây dựng hướng dẫn);
- Bản sao một trong những giấy tờ về quyền sử dụng đất theo quy định của pháp luật về đất đai có công chứng. (sổ cũ phải có bản vẽ hiện trạng vị trí)
- Nhà có tầng hầm phải có bản vẽ và biện pháp thi công tầng hầm.
- Khi xây dựng nhà ở riêng lẻ trong vùng đã có quy hoạch xây dựng được duyệt và công bố nhưng chưa thực hiện thì hồ sơ cần phải có Giấy cam kết tự phá dỡ công trình khi Nhà nước thực hiện quy hoạch xây dựng. (Trong trường hợp này chỉ được cấp Giấy phép xây dựng tạm có thời hạn theo thời hạn thực hiện quy hoạch).
- Nộp lệ phí cấp Giấy phép xây dựng. Lệ phí cấp Giấy phép xây dựng thuộc thẩm quyền quyết định của Hội đồng nhân dân cấp tỉnh.
** Trường hợp riêng cho một số quận:
- Giấy phép kinh doanh và chứng chỉ hành nghề thiết kế của công ty thiết kế.
- Bản kê khai kinh nghiệm thiết kế của công ty thiết kế xây dựng
- Phải có hộ khẩu và chứng minh của chủ nhà.
- Kê khai thông báo lệ phí trước bạ **
Xin giấy phép xây dựng mất bao nhiêu ngày?
Kể từ ngày nhận đủ hồ sơ hợp lệ, cơ quan cấp phép xây dựng phải xem xét hồ sơ để cấp giấy phép trong thời gian quy định dưới đây:
- Đối với trường hợp cấp giấy phép xây dựng mới, bao gồm cả giấy phép xây dựng tạm, giấy phép xây dựng điều chỉnh, giấy phép di dời, thời gian không quá 20 ngày làm việc đối với công trình; 15 ngày làm việc đối với nhà ở riêng lẻ tại đô thị; 10 ngày làm việc đối với nhà ở nông thôn, kể từ ngày nhận đủ hồ sơ hợp lệ;
- Đối với trường hợp cấp lại hoặc gia hạn giấy phép xây dựng: Không quá 10 ngày làm việc.
Với những bí quyết tôi đã chia sẽ ở trên chắc bạn cũng đã cơ bản hiểu được quy trình cũng như thủ tục để xin Giấy Phép Xây Dựng rồi chứ. Tuy nhiên, nếu bạn vẫn còn cảm thấy khó khăn thì hãy để tôi giúp bạn một tay.
Tại sao bạn chọn xin giấy phép xây dựng tại Công ty Xây dựng nhà Song Ngân?
♥ Đừng để thời gian của bạn trôi qua một cách hoang phí, cũng đừng để giấc ngủ của bạn không tròn giấc vì những lo toan và càng không nên để gia đình bạn sống chật vật trong phòng trọ nóng bức hay căn nhà cũ đã xuống cấp.
♥ Xin giấy phép xây dựng là “chìa khóa” giúp mở cánh cửa giúp gia đình bạn có một cuộc sống hạnh phúc trọn vẹn đúng như ông bà xưa có nói “An cư lạc nghiệp”.
♥ Nếu bạn không đủ khả năng và thời gian trong việc xin giấy phép xây dựng nhà, hãy để Công ty Song Ngân của chúng tôi hỗ trợ bạn. Những ngày đầu trong việc xin giấy phép cũng khiến chúng tôi gặp không ít trở ngại nhưng với hơn 10 năm kinh nghiệm, mỗi tháng đều giải quyết vô số yêu cầu trợ giúp xin giấy phép, chúng tôi tự tin sẽ đem đến cho bạn dịch vụ NHANH CHÓNG – CHÍNH XÁC – TIẾT KIỆM nhất.

Bản vẽ Xin Giấy Phép Xây Dựng hoàn chỉnh

Chuẩn bị hồ sơ Xin Giấy Phép Xây Dựng

Giấy Phép Xây Dựng được Quận cấp

Giấy Phép Xây Dựng được Quận BÌNH THẠNH cấp

Giấy phép Xây Dựng được Quận THỦ ĐỨC cấp

Hàng trăm Chủ Nhà đã hài lòng.
Nếu bạn cần thêm tư vấn, đừng ngần ngại hãy gọi cho mình theo số 0913 808 300 ( Tô Vọng Thiên – Giám đốc). Luôn sẵn sàng tư vấn bạn MIỄN PHÍ.
Chúc bạn và gia đình luôn hạnh phúc
